20+ years of simplifying rental property ownership

647-417-7462

or TOLL FREE 1-844-7-DASH-PM (3274-76)

Live in Style at NORTH OSHAWA UC3 Residences – Now Leasing

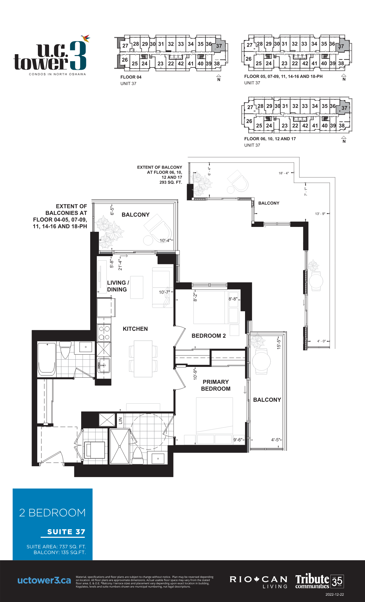
Unit 537

Price* $2,200

Suite size* 737

Bedrooms 2

Washrooms* 2

Balcony 135 sq ft

View*Northeast

Parking* 1

Storage Locker*-

Utilities Included*no

Eletricity

N

Forced Air / Gas

N

Water

N

Lndry Acc

Y

A/C

Y

Elev/Lift

Y

Bldg Amen

Y

Toronto Regional Real Estate Board (TRREB) assumes no responsibility for the accuracy of any information shown. Copyright TRREB 2023.

Floor Plan

Legend

WIC

Walk-in-closet

W/D

Washer/dryer

FC

Fan coil

L

Linen closet

SH

Shelf

F

Fridge

CT/O

Cooktop/Oven

MV

Microwave

DW

Dishwasher

Toronto Regional Real Estate Board (TRREB) assumes no responsibility for the accuracy of any information shown. Copyright TRREB 2023.

HERE’S HOW YOU CAN contact us TODAY

Lease a suite